On April 1, 2026, a penthouse on the 27th floor of the JW Marriott Residences at Reston Station sold for $10.25 million. That single transaction erased Virginia’s previous condo record by nearly $4.6 million, a margin so large it almost feels like a different category of real estate. The previous record, set in early 2024 at the Waterview tower in Rosslyn, now looks like a different era.
But the headline number is almost secondary to the story underneath it. The buyer didn’t just purchase a penthouse. They bought two units on the 27th floor and combined them into a single 5,768-square-foot home with a 2,008-square-foot private balcony. Separately, the same buyer paid $1.5 million for a unit on the 24th floor of the same building. Total spend: $11.75 million in Reston.
That is not the buyer profile Reston has historically attracted. And the JW Marriott Residences is not the kind of building Reston has historically had. If you’ve watched this tower rise at Reston Station and wondered who it’s actually for, what it costs, and what’s still available, this is a full look at all of it.
The Building at a Glance
The JW Marriott Residences sits inside Reston Row, the second phase of Comstock’s Reston Station development along the Silver Line corridor. The 28-story tower contains 248 hotel rooms on the lower floors and 93 private residences above, with a dedicated residential entrance that is completely separate from the hotel. Residents do not share a lobby with hotel guests.
The project was completed in 2025 and houses Virginia’s first JW Marriott hotel. All resident amenities are concentrated on the 25th floor, a private club level exclusively for owners. Below the residences, at street level and in the surrounding development, Reston Row also includes trophy office buildings soon to be home to Booz Allen Hamilton, a 420-unit apartment tower, and a retail component that continues to fill out.
What a Branded Residence Actually Means
The phrase “branded residence” gets used loosely, so it’s worth being specific about what it means in this context. When you buy at the JW Marriott Residences, you own your unit outright as a condominium. The Marriott brand governs the building’s design standards, the finish levels, and the service infrastructure that surrounds daily life here. The hotel below is not a separate entity you happen to live above. It is part of the same building, managed to the same standard, and its service apparatus is available to residents in ways that a conventional condo building simply cannot replicate.
This concept has been common in major cities and resort markets for years. Finding it in Northern Virginia is new. The Ritz-Carlton Residences planned for Tysons will bring a second branded project to the region eventually, but right now, the JW Marriott Residences at Reston Station is the only one. For buyers who know this product type from other markets, that matters.
Who Is Actually Buying Here?
The $10.25 million buyer is an outlier in price but not necessarily in profile. The people drawn to this building generally share a few characteristics.
A meaningful share are senior-level professionals who spent years commuting from large single-family homes in Great Falls, McLean, or the farther-out Reston neighborhoods, and have reached a point where the house is more maintenance than they want. What they’re looking for is a maintenance-free lifestyle that doesn’t feel like a downgrade, and in terms of finishes, services, and amenity access, this building does not ask them to compromise.
Others are executives relocating specifically because of what’s happening at Reston Station. Booz Allen Hamilton is moving its headquarters to the adjacent office buildings. That anchors significant senior-level employment right here, and buyers who want to live close to work without living in a traditional suburban neighborhood now have a compelling option that simply didn’t exist before.
And some buyers are coming from considerably farther away. For international buyers or frequent travelers who want a foothold in the Washington area, a JW Marriott branded residence offers something specific: a recognized global hospitality standard, a Metro-accessible location between Dulles and DC, and a genuine urban walkability score that Reston has only recently earned. For this buyer, Reston is no longer a compromise. It’s the point.
The Amenities
Resident amenities are located on the 25th floor and are private to owners only.
Owner’s Lounge and Bar: A dedicated lounge and bar for residents, not shared with hotel guests.
Board Room: A private meeting and conference space. For buyers who work independently or run businesses, having a professional meeting room in their building is a real advantage.
Rooftop Grilling Areas: Multiple outdoor entertaining and grilling spaces with views across Reston, Tysons, and on a clear day, the Blue Ridge foothills to the west.
Rooftop Dog Park: One of very few buildings in Northern Virginia with dedicated outdoor dog space at elevation. Pets are welcome at the JW Marriott Residences, with no weight restrictions indicated in the listing.
Private Fitness Center: A resident-only gym, separate from any hotel fitness facilities.
Security and Extra Storage: Secured building access and dedicated storage for residents.
What the Condo Fee Covers
The monthly condo fee is $1,838.08. That number is worth looking at closely, because what it includes is substantial: common area maintenance, exterior building maintenance, gas, insurance, management, recreation facilities, sewer, snow removal, trash, and water.
For a buyer who has been managing a single-family home, with separate utility accounts, exterior maintenance vendors, a lawn service, and the recurring surprises that come with an aging structure, bundling all of that into a single monthly payment looks different on paper than it might at first glance. The fee is high, but so is what it replaces.
The Interiors
Every residence features 10-foot floor-to-ceiling windows. In a building of this height, those windows deliver real views, not just a gesture toward light. Quartzite countertops and backsplashes come standard. Smart entry locks are built in. Each unit has a private balcony. The building is constructed of concrete and glass, which has tangible implications for sound transmission and structural feel compared to wood-frame construction.
The Floor Plans
The JW Marriott Residences offers eight distinct floor plan types, ranging from one-bedroom-plus-den configurations to three-bedroom residences spanning over 2,000 square feet.
A1 | 1 Bedroom + Den / 2 Bathroom | Approx. 1,170 SF

The A1 is the entry configuration. The bedroom is 12’3″ x 14’2″, the den measures 9’2″ x 8’9″ and works well as a dedicated office, and the living/dining space runs 23’8″ x 11’8″. The balcony is 21’4″ x 7’9″. A well-proportioned home with sensible layout and no wasted square footage.
A4 | 1 Bedroom + Den / 2 Bathroom | Approx. 1,262 SF

The A4 stretches the same program across a wider footprint. The bedroom is 11’9″ x 16’9″ and the living/dining room opens to 22’1″ x 15’4″, a generous space that feels larger than the overall square footage suggests. The balcony extends to 28’6″ x 7’9″. This plan runs longer and narrower, which suits corner and view-facing orientations particularly well.
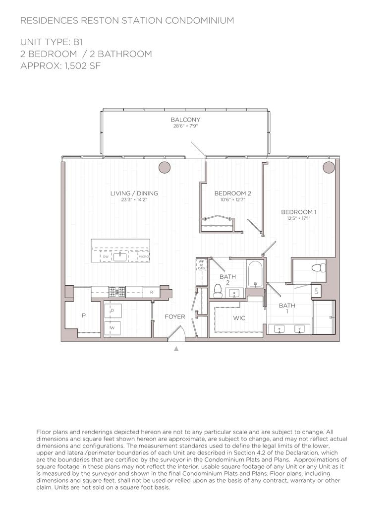
B1 | 2 Bedroom / 2 Bathroom | Approx. 1,502 SF

The B1 is the base two-bedroom layout. The primary bedroom runs 12’5″ x 17’1″ and the second bedroom is 10’6″ x 12’7″. The living/dining area is 23’3″ x 14’2″. The full balcony is 28’6″ x 7’9″. This is the plan type on the current active MLS listing at $1,609,900.
B2 | 2 Bedroom / 2 Bathroom | 1,470 SF

The B2 is a split-bedroom layout, with both bedrooms at 11’1″ x 11’4″ flanking the central living and dining space at 22’5″ x 16’8″. It includes a powder room in addition to the two full baths. The symmetrical bedroom sizing makes it a natural fit for buyers who want equivalent guest accommodations.
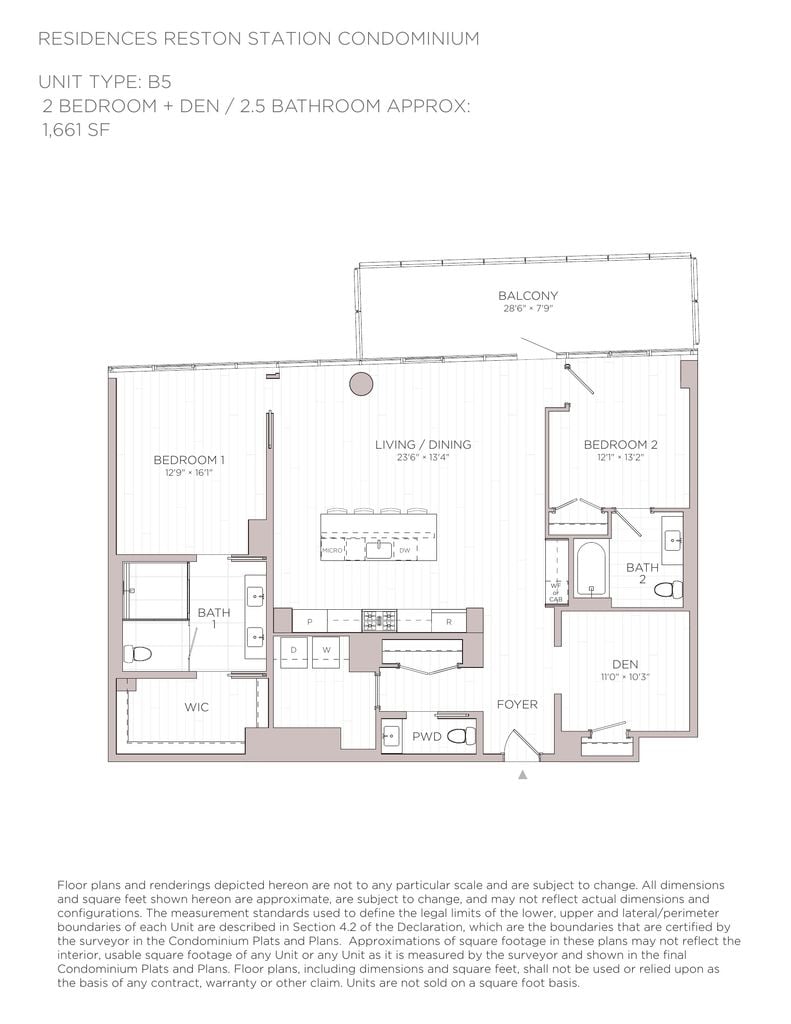
B5 | 2 Bedroom + Den / 2.5 Bathroom | Approx. 1,661 SF

The B5 adds a substantial den (11’0″ x 10’3″) to the two-bedroom program. The primary bedroom is 12’9″ x 16’1″, Bedroom 2 is 12’1″ x 13’2″, and the living/dining space is 23’6″ x 13’4″. The half bath serves the den area, making it a viable private home office with its own guest bath access nearby.
B7 | 2 Bedroom + Den / 2.5 Bathroom | Approx. 1,759 SF

The B7 stands out for its living and dining room, which measures 28’1″ x 29’7″, a genuinely large open space, larger than the main living areas in most single-family homes in this price range. The primary bedroom is 15’10” x 15’10”, the second bedroom is 16’6″ x 13’3″, and the den is 11’1″ x 11’4″. This plan is for buyers who want real volume in the living area.
B8 | 2 Bedroom + Den / 2.5 Bathroom | 1,750 SF

The B8 is similar in size to the B7 but configured differently, and it includes a soaking tub in the primary bath, the only two-bedroom plan in the building with one. The primary bedroom is 13’7″ x 14’5″, the second bedroom is 13’7″ x 13’4″, and the den at 12’11” x 10’0″ is one of the deeper den spaces in the building.
C2 | 3 Bedroom / 3 Bathroom | Approx. 2,054 SF

The C2 is the largest standard floor plan in the building. It has two separate balconies: one at 23’6″ x 23’10” and a second at 23’4″ x 21’6″. The primary bedroom runs 20’9″ x 11’2″. Unlike the two-bedroom plans, the C2 separates the living and dining rooms into distinct spaces rather than one open zone, a more traditional layout that works well for buyers who entertain formally. Three-bedroom residences start at $3,449,900.
Pricing and What’s Available
- 1 Bedroom + Den: Starting from $1,399,900
- 2 Bedroom: Starting from $1,609,900
- 2 Bedroom + Den: Starting from $1,995,900
- 3 Bedroom: Starting from $3,449,900
At the penthouse level, one 26th-floor unit sold in January for $4.8 million, and one penthouse on the 26th floor remains available. The 28th-floor combined penthouse is under contract and expected to close within the next month for less than $10.25 million. The record-setting 27th-floor unit is sold.
As of late April 2026, approximately 34 of the building’s 93 units have sold, leaving meaningful inventory across multiple plan types and floors, including one remaining 26th-floor penthouse opportunity.
A Few Practical Considerations
The condo fee is the number most buyers want to talk through first, and for good reason. At just over $1,800 per month, it is a real line item. When you add up what the fee replaces, utility accounts, exterior maintenance, snow removal, insurance, trash, and recreation, the gap between this and the true cost of owning a comparable single-family home often narrows considerably. Still, every buyer needs to run those numbers for their own situation.
This is a true lock-and-leave building. There is no yard, no garage workshop, no outdoor space that is entirely your own. The rooftop amenities and private balconies cover a lot of ground, but if you want land, this is not your building. For buyers who are past that chapter, that’s not a drawback.
One garage parking space is included with each unit. The Wiehle-Reston East Metro station on the Silver Line is walkable from the building. Dulles Airport is a short drive west. The restaurants and retail at Reston Town Center are accessible on foot or a short drive, and the surrounding Reston Row development continues to add to the ground-floor experience around the building.
What the Record Really Signals
The $10.25 million sale will generate plenty of headlines. What it actually represents is harder to quantify but worth thinking about: a buyer with unlimited geographic options chose Reston, at a price point that puts this community in company with Georgetown and the best buildings in Washington’s urban core. That doesn’t happen by accident.
Whether you’re considering a one-bedroom-plus-den as a pied-à-terre, a two-bedroom as a primary home, or one of the remaining penthouse opportunities, the JW Marriott Residences is worth understanding in full. If you’d like to walk through the available inventory, compare floor plans side by side, or get a sense of how this stacks up against other options in the Reston real estate market, reach out to us at Greater Reston Living. We’re happy to help you figure out whether this building fits what you’re looking for.

