3111 CARROLL PLACEFALLS CHURCH, VA 22042




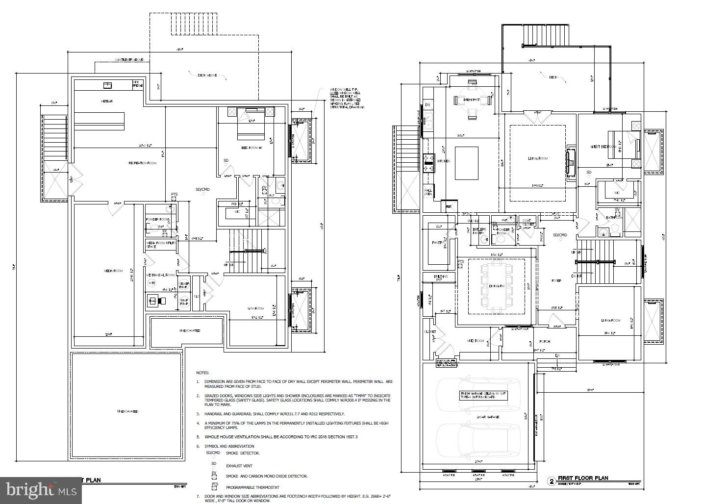
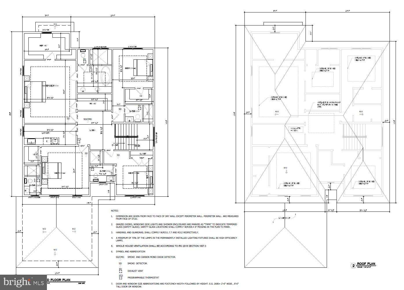
Discover an exceptional opportunity to build a custom luxury home in the heart of Falls Church. This thoughtfully designed residence blends timeless architecture with modern elegance—and offers buyers the rare chance to personalize finishes and selections. The home’s striking curb appeal is showcased in the architectural elevations (see plans), featuring a balanced two-story design with a welcoming covered front porch, clean lines, and a spacious rear deck ideal for entertaining. The exterior combines premium materials and refined detailing for a sophisticated, lasting impression. Inside, the home is designed for both comfort and upscale living: • 10-foot ceilings on the main level • Wide-plank engineered hardwood flooring throughout all levels • Open-concept layout with expansive living and dining spaces The gourmet kitchen will be a true centerpiece, appointed with custom cabinetry, quartz or granite countertops, and high-end appliances, flowing seamlessly into the family room and outdoor deck—perfect for indoor-outdoor living. Retreat to luxurious bedroom suites and spa-inspired bathrooms featuring: • Frameless glass showers and freestanding soaking tubs • Designer tilework and LED mirrors • Premium fixtures and finishes throughout The fully finished basement offers incredible flexibility with a wet bar, media room, en-suite bedroom, rec room, gym and additional living areas, all finished to the same high standards as the upper levels. Built with modern convenience and efficiency in mind: • Two-zone HVAC system with Nest thermostats • Over 200 recessed LED lights • Pre-wired for whole-home audio, security cameras, and high-speed internet • High-performance insulation and quality structural construction Enjoy outdoor living with a rear deck, landscaped yard, and thoughtfully designed exterior spaces, all enhancing the home’s functionality and appeal. 📍 Ideally located in Falls Church, just minutes from major commuter routes, shopping, dining, and top-rated schools—offering both convenience and a quiet residential setting. ✨ Act now to customize finishes and create a truly one-of-a-kind home tailored to your lifestyle.
| 9 hours ago | Listing first seen on site | |
| 9 hours ago | Listing updated with changes from the MLS® |
The real estate listing information is provided by Bright MLS is for the consumer's personal, non-commercial use and may not be used for any purpose other than to identify prospective properties consumer may be interested in purchasing. Any information relating to real estate for sale or lease referenced on this web site comes from the Internet Data Exchange (IDX) program of the Bright MLS. This web site references real estate listing(s) held by a brokerage firm other than the broker and/or agent who owns this web site. The accuracy of all information is deemed reliable but not guaranteed and should be personally verified through personal inspection by and/or with the appropriate professionals. Properties in listings may have been sold or may no longer be available. The data contained herein is copyrighted by Bright MLS and is protected by all applicable copyright laws. Any unauthorized collection or dissemination of this information is in violation of copyright laws and is strictly prohibited. Copyright © 2020 Bright MLS. All rights reserved.


Did you know? You can invite friends and family to your search. They can join your search, rate and discuss listings with you.